Villa a schiera in vendita

Villasimius, Via parigi
€ 175.000
3 locali 3 locali
65 Mq 65 Mq
1 bagno 1 bagno

Villa a schiera in vendita

Villasimius, Via parigi

Descrizione annuncio

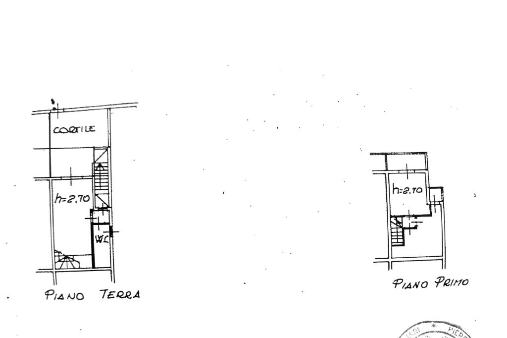
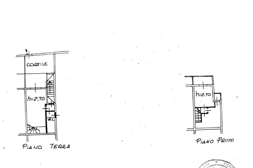
VILLASIMIUS: proponiamo in vendita a pochi minuti dalle meravigliose spiagge della costa sud della Sardegna, una graziosa villetta terra-cielo, perfetta come abitazione principale, casa vacanze o investimento locativo.

La proprietà si apre con una veranda d’ingresso vivibile, ideale per momenti di relax all’aperto. All’interno, una zona giorno accogliente e luminosa con angolo cottura offre un ambiente confortevole e pratico. Al piano terra troviamo anche un antibagno e un bagno finestrato, in buone condizioni e funzionale all’uso quotidiano.

Una scala interna conduce al primo piano, dove un comodo pianerottolo distribuisce gli spazi tra una camera matrimoniale con balcone privato e una camera singola anch' essa completa di balcone privato, perfetta come stanza per ospiti, o seconda camera da letto.

A completare la proprietà, un garage al piano seminterrato, che garantisce praticità e spazio extra per ogni esigenza.

Contattaci per maggiori informazioni o per fissare una visita!

Mostra tutto

Nelle vicinanze

Trasporto pubblico Trasporto pubblico
Trasporto pubblico
410 m
Matilda II
2,7 Km
Fiore di Maggio Escursioni
2,8 Km
Ricariche auto elettriche Ricariche auto elettriche
Villasimius Mazzini | EnelX
1,2 Km
Farmacia Farmacia
Farmacia
1,1 Km
Farmacia
2,9 Km
Ospedali Ospedali
Dott.ssa Andreina Mureddu
1,2 Km
Supermercati Supermercati
EuroSpin
790 m
Conad City
810 m
Dimeglio
910 m
Market Simius
1,1 Km
Supermercati
2,3 Km
Negozi Negozi
EuroShopping Market
280 m
Negozi
640 m
Outlet
900 m
Panificio Frau
1,0 Km
Sfizi di pane e non
2,9 Km
Bar Bar
Lo Sciabecco
1,2 Km
Cormoran
2,3 Km
Ristoranti Ristoranti
Pepe Nero
310 m
La Lanterna
480 m
Sa Tankitta
630 m
Non solo Pizza
640 m
Da Tonio
670 m
Mostra tutto

Caratteristiche

Rif.:
61119188
Piano:
Su più livelli di 2
Totale piani:
2
Box:
1
Balconi:
2
Terrazzi:
1
Mostra tutto
Prezzo Prezzo
€ 175.000
Rata mutuo Rata mutuo
€ 802 / mese
Spese annue Spese annue
€ 200
Proponi il tuo prezzoProponi il tuo prezzo

Classe Energetica

F
F
F
F
F
F
F
F
F
EP globale non rinnovabile:
157.05 kW h/m² anno
EP globale rinnovabile:
54.66 kW h/m² anno
EP invernale del fabbricato:
EP estiva del fabbricato:
Anno di costruzione:
1992
Riscaldamento:
Autonomo
Tipo impianto:
Ad aria
Tipo alimentazione:
Aria

Ti interessa visionare l'immobile?

Fissa un appuntamento  Fissa un appuntamento

Richiedi informazioni

* Questi campi sono obbligatori

Calcola il tuo mutuo

Semplice e senza impegno
Anticipo

( % )
Mutuo

( % )

pochi semplici passi

inserisci i tuoi dati
Questionario completato
Grazie per aver richiesto un appuntamento senza impegno con un nostro Consulente del Credito e Assicurativo.

Hai inserito correttamente tutti i dati necessari e a breve riceverai una e-mail con un link da convalidare per inviare i tuoi dati.
Affiliato
Studio Villa Srl
Via del Mare, 40 09049 Villasimius (SU)

Il nostro staff


  • Valentina Porcu
    Affiliata

  • Michele Porcu
    Responsabile

  • Valentina Boi
    Coordinatrice

  • Daniele Todde
    Collaboratore

  • Rachela Zuppa
    Coordinatrice
Via del Mare, 40 09049 Villasimius (SU)
Zona: Villasimius-Solanas
Mostra su mappa
Orari: Dal lunedì al venerdì 09.00-13.00/16.00-20.30; sabato fino alle 19.00; domenica su appuntamento
Affiliato
Studio Villa Srl
Via del Mare, 40 09049 Villasimius (SU)

2025 Tecnocasa Franchising S.p.A. - P. IVA 08365160152 - Via Monte Bianco 60/A 20089 Rozzano (MI). Ogni agenzia ha un proprio titolare ed è autonoma. Privacy policy | Policy utilizzo | Cookie policy